T型過濾器
產品概述
過濾器是除去液體中少量固體顆粒的小型設備,可保護壓縮機、泵、儀表和其它設備的正常工作,當流體進入置有一定規格濾網的濾筒后,其雜質被阻擋,而清潔的濾液則由過濾器出口排出,當需要清洗時,只要將可拆卸的濾筒取出,處理后重新裝入即可,因此,使用維護方便。本公司的過濾器具有結構緊湊、過濾能力大、壓損小、適用范圍廣、維護方便、價格低廉等優點,其主要適用的物料有:化工、石油化工生產中弱腐蝕性物料,如:水、油品、氨、烴類等。化工生產中的腐蝕性物料,如:燒堿、純堿、濃稀硫酸、碳酸、醛酸等。制冷中的低溫物料,如:液甲烷、液氨、液氧和各種冷劑。食品、制藥生產中有衛生要求的物料,如:啤酒、飲料、乳制品、糖漿等。
型號標注
本公司的管道過濾器,主要有:1、Y型過濾器 2、T型過濾器 3、籃式過濾器 4、臨時過濾器 5、氣體過濾器。 其型號標注如下:
2、T型過濾器
(1)T型對焊連接直通式過濾器(PFT-W型)(DN50~400,PN≤5.OMPa)
(2)T型法蘭連接直通式過濾器(PFT-F型)(DN50~400,PN≤5.OMPa)
PFTI—W、PFTI—F型
DN |
TI-W型 |
TI-F型 |
N |
L |
DO |
H |
L |
H |
系列A |
系列B |
50 |
128 |
60.3 |
57 |
175 |
230 |
170 |
Rc3/8 |
65 |
152 |
76.1 |
76 |
195 |
260 |
170 |
80 |
172 |
88.9 |
89 |
210 |
290 |
180 |
100 |
210 |
114.3 |
108 |
230 |
350 |
200 |
125 |
248 |
139.7 |
133 |
310 |
390 |
230 |
150 |
286 |
168.3 |
159 |
335 |
435 |
250 |
Rc3/4 |
200 |
356 |
219.1 |
219 |
400 |
540 |
310 |
250 |
432 |
273 |
273 |
450 |
640 |
370 |
M20×1.5 |
300 |
508 |
323.9 |
325 |
535 |
745 |
425 |
350 |
558 |
355.6 |
377 |
580 |
800 |
460 |
400 |
610 |
406.4 |
426 |
640 |
900 |
520 |
注:用戶在訂貨時請注明三通壁厚系列
(3)T型對焊連接折疊直通式過濾器(PFTM I—W型)(DN200—500,PN≤5.0MPa) PFTMI-W型
DN |
DO |
L |
H |
N |
系列A |
系列B |
200 |
219.1 |
219 |
356 |
380 |
M20×1.5 |
250 |
273 |
273 |
432 |
520 |
300 |
323.9 |
325 |
508 |
580 |
350 |
355.6 |
377 |
558 |
700 |
400 |
406.4 |
426 |
610 |
760 |
500 |
508 |
529 |
762 |
920 |
|
|
 |
(4)T型對焊連接正折流式過濾器(PFT II—W型)(DN50~400,PN≤5.OMPa)
(5)T型對焊連接反折流式過濾器(PFT III—W型)(DN50~400,PN≤5.OMPa)
PFT II—W,PFT III—W型
DN |
DO |
L |
H |
L1 |
N |
系列A |
系列B |
50 |
60.3 |
57 |
300 |
64 |
165 |
Rc3/8 |
65 |
76.1 |
76 |
340 |
76 |
185 |
80 |
88.9 |
89 |
370 |
86 |
195 |
100 |
114.3 |
108 |
425 |
105 |
220 |
125 |
139.7 |
133 |
465 |
124 |
240 |
150 |
168.3 |
159 |
520 |
143 |
270 |
Rc3/4 |
200 |
219.1 |
219 |
630 |
178 |
320 |
250 |
273 |
273 |
740 |
216 |
370 |
M20×1.5 |
300 |
323.9 |
325 |
845 |
254 |
420 |
350 |
355.6 |
377 |
910 |
279 |
450 |
400 |
406.4 |
426 |
1040 |
305 |
520 |
(6)T型法蘭連接正折流式過濾器(PFT II—F型)(DN50~400,PN≤5.OMPa)
(7)T型法蘭連接反折流式過濾器(PFT III—F型)(DN50~400,PN≤5.OMPa)
PFI II—F型,PFT III—F型
DN |
L |
H |
L1 |
N |
50 |
300 |
165 |
165 |
Rc3/8 |
65 |
340 |
185 |
185 |
80 |
370 |
195 |
195 |
100 |
425 |
195 |
220 |
125 |
465 |
195 |
240 |
150 |
520 |
215 |
270 |
200 |
630 |
270 |
320 |
Rc3/4 |
250 |
740 |
320 |
370 |
300 |
845 |
370 |
420 |
M20×1.5 |
350 |
910 |
400 |
450 |
400 |
1040 |
450 |
520 |
|
|
 |
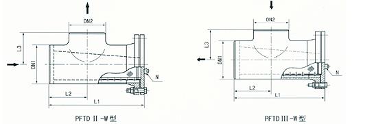
(8)T型異徑對焊連接正折流式過濾器(PFTDII—F型)(DN50X40~300×X250,PN≤10.OMPa)
(9)T型異徑對焊連接反折流式過濾器(PFTDIII—F型)(DN50X40~300×250,PN≤10.OMPa)
PFTD II—W,PFTD III—W型
DN1×DN2 |
DN1×DN2 |
L2 |
L3 |
L1 |
N |
系列A |
系列B |
PN2.0 |
PN2.5 |
PN4.0 |
PN5.0 |
PN10.0 |
50×40 |
60.3×48.3 |
57×45 |
64 |
60 |
213 |
202 |
202 |
222 |
228 |
Rc3/8 |
80×50 |
88.9×60.3 |
89×57 |
86 |
76 |
268 |
216 |
263 |
282 |
289 |
80×65 |
88.9×76.1 |
89×76 |
86 |
83 |
268 |
261 |
263 |
282 |
289 |
100×65 |
114.3×76.1 |
108×76 |
105 |
95 |
312 |
304 |
314 |
330 |
352 |
100×80 |
114.3×88.9 |
108×89 |
105 |
98 |
312 |
304 |
314 |
330 |
352 |
150×100 |
168.3×114.3 |
159×108 |
143 |
130 |
402 |
392 |
394 |
423 |
453 |
Rc3/4 |
200×100 |
219.1×114.3 |
219×108 |
178 |
156 |
489 |
469 |
487 |
510 |
546 |
250×150 |
273×168.3 |
273×159 |
216 |
194 |
566 |
550 |
579 |
599 |
649 |
250×200 |
273×219.1 |
273×219 |
216 |
203 |
566 |
550 |
579 |
599 |
649 |
M20×1.5 |
300×250 |
323.9×273 |
325×273 |
254 |
241 |
656 |
632 |
670 |
691 |
732 |